- 硫霧回收裝置
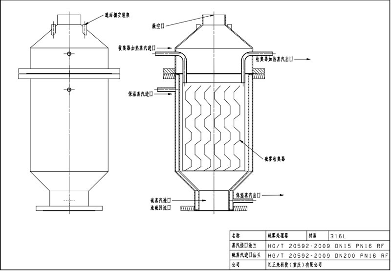
SRD一款硫霧回收裝置,液硫儲罐、熔硫系統含硫蒸汽的尾氣通過排氣孔進入處理器,冷卻形成硫霧,硫霧通過高效聚結收集器附著在收集片表面,空氣隨排氣孔排入大氣中,硫霧回收器自動通入低壓加熱蒸汽,硫磺粉熔化成液硫后回落進入液硫儲罐,形成一個回收利用循環。可以處理尾氣中95%以上的硫蒸汽和硫霧。整個過程無需人工干預,實現全自動化運行。采用904耐腐蝕不銹鋼制造。裝置運行穩定可靠,適應各種液硫工況變化,確保系統在不同負荷下均能高效運行。
SRD-系列硫霧回收裝置采用耐腐蝕不銹鋼材質,全生命周期免維護,主要解決液硫儲存自然揮發升華硫回收,有效捕集硫蒸氣并冷凝為固態硫磺,并在此回到液硫儲罐中,避免管道結晶堵塞與環境污染。裝置配備智能溫控系統,確保冷凝效率穩定,回收純度達99.5%以上。模塊化設計便于擴容與集成,適用于連續或間歇工況,廣泛應用于硫磺制酸及煙氣治理系統,助力企業實現資源循環與超低排放目標。



.png)


.png)
.jpg)
.jpg)
